- Area: 400 m²
- Project Location: Unit 317B, Guojin Center, Jiu Long Po, Changsha, Hunan Province
Project Overview
This is a restaurant specializing in custom-crafted Chinese and Western fusion cuisine.
- Upon entering, the layout combines traditional charm with a modern aesthetic. Guests are greeted by lacquered art panels custom-made by local artisans, inspired by Xiangjiang River motifs, blending the interior’s elegance with a touch of regional culture.
- As guests proceed, the path transitions into a semi-enclosed dining area, establishing a refined yet lofty ambiance that flows seamlessly from the waiting area to the main dining space.
- The high ceiling, with a dark wood backdrop extending to the floor, complements the display shelves, which feature delicate white ceramics favored by the restaurant’s patrons. Suspended lighting casts a gentle starlit effect, reflected in mirrors that change in rhythm with the background music and projected images, adding a dynamic urban vibe.
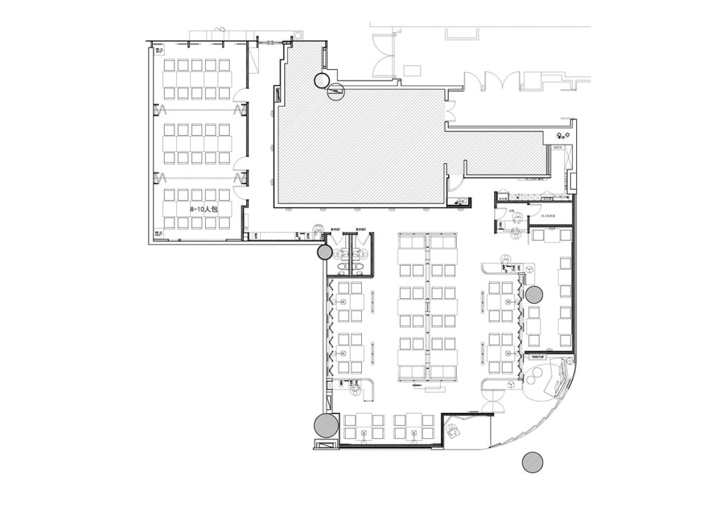
- A serene hallway, lined with carefully placed greenery, offers a moment of tranquility before guests reach the private dining areas. With randomly arranged geometric shapes, these rooms accommodate various events and wine tastings, meeting the needs of small to medium-sized gatherings.
The result is a sophisticated yet understated dining space, where every dish reflects elegance and a commitment to elevating lifestyle rituals through fine dining.
Key Materials
- Gray Stone Flooring, Purple Gold Metal Finish, White Stone, Light Beige Wallpaper











